Alignment in Raul Sanchez's BSP 20 design

February 2, 2023

Raul Sanchez has just renovated a townhouse in Borne, Barcelona, Spain. The project has been a long journey for him, starting in 2013 when BSP20 owner asked Raul Sanchez to design a halfway house and his workspace.

front view of the building, Photo by José Heviafront view of the building, Photo by José Hevia

However, due to regulatory issues, construction work started after seven years. During this period, the already destroyed building was further destroyed. After a long time, in 2020 finally, new construction work could begin. Of course, after a long time resulting in changes in the design of this residence, Raúl Sánchez decided to completely overhaul the inside of the building, leaving only four exterior walls and a roof.

at the time of construction, Photo by José Heviaat the time of construction, Photo by José Hevia

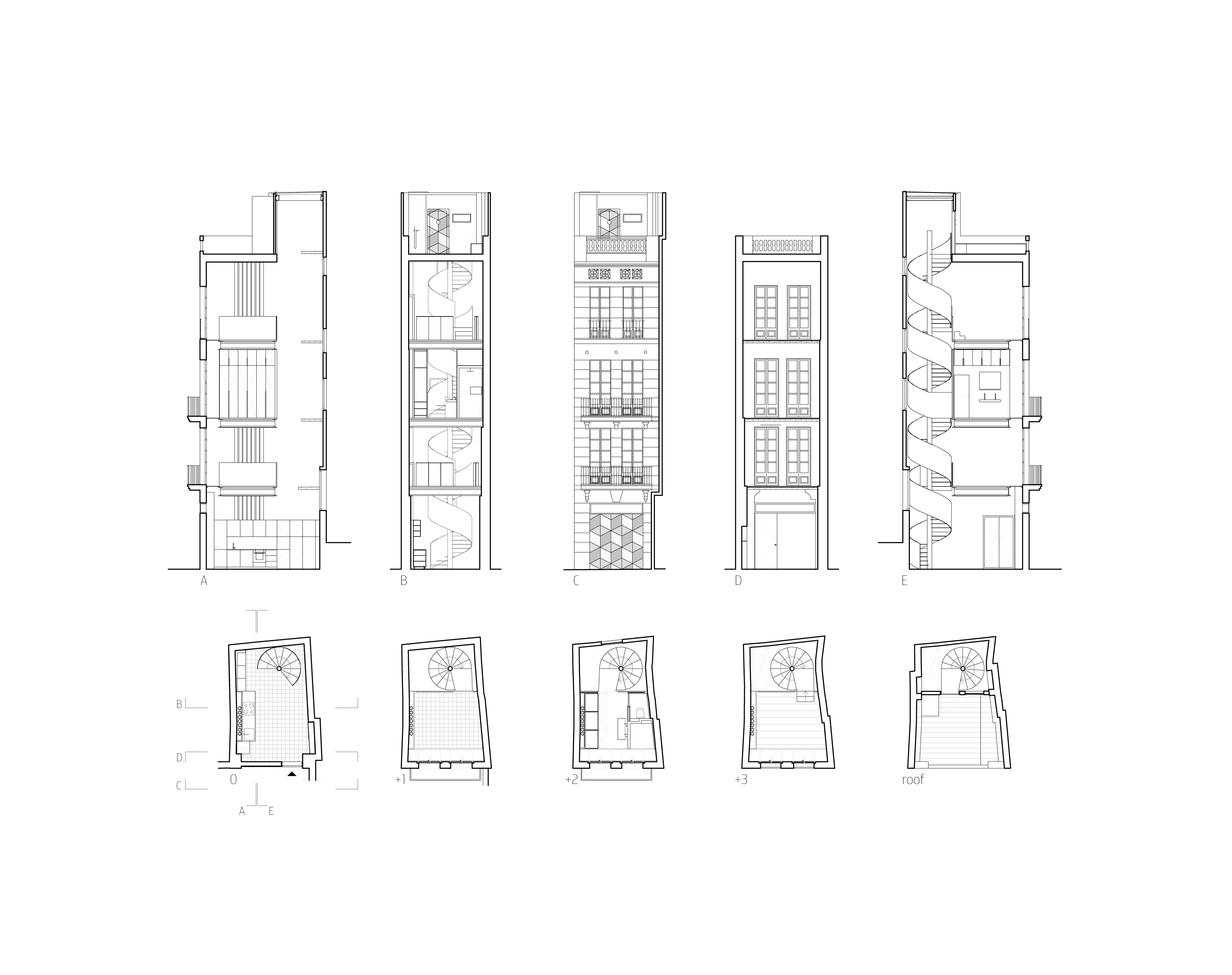
Raul designed three new floors with a layout that has been adapted to the needs of the current owner, this 20 square meter floor layout does not touch the front and back walls of the building, and all structures are only connected to the right and left sides of the building. Because of such a floor concept, in the front gap, glass panels are added to each floor, which allows residents to get a glimpse of various levels of the house, while at the back, a white spiral staircase is added as the main access to this building. Above the stairs is covered with a glass roof that allows natural light to filter into the building.

floor plan, source by Raul Sanchezfloor plan, source by Raul Sanchez

Interior, Photo by José HeviaInterior, Photo by José Hevia

With an area of 105 square meters, all floors are connected by a spiral staircase at the back, with different functions on each floor. For example, the ground floor functions as a kitchen and dining room, while on the first floor, there is a living room, the second-floor functions as a bathroom and dressing room, the third floor is intended for bedrooms, and the fourth floor is a rooftop. After all, this room can be transformed according to time or needs into a workspace.

living room interior, Photo by José Hevialiving room interior, Photo by José Hevia

bathroom interior, Photo by José Heviabathroom interior, Photo by José Hevia

With the strict regulations of the inheritance department, the design of the main façade is adapted by restoring it to the image of the past. Only at the entrance is it freed to be designed attractively and differently from others. The main door is designed with a rhombic and triangular look that uses 3 types of aluminum. The three-dimensional image of this classic hydraulic mosaic is a special request from homeowners.

Entrance, Photo by José HeviaEntrance, Photo by José Hevia

Not only that, the floor material in this residence uses ceramics with a mosaic motif that matches the main door. Meanwhile, the interior wall needs to be changed while maintaining the original wall, and window frames and structural elements are left unpolished.

Ground floor interior, Photo by José HeviaGround floor interior, Photo by José Hevia

The interior is refined by selecting new elements implemented contrary to the rough expression of the existing walls. Thus, kitchen furniture uses a shiny brass material with white marble. Bathroom utensils are covered with lacquered wood in a slightly cream color, with black and brass details. On the headboard, the floor is covered with white micro cement, hydraulic mosaics, micro cement, and oak flooring, adding warmth and color to the interior, and the ceiling uses lacquered wood.

Rooftop, Photo by José HeviaRooftop, Photo by José Hevia

The building is a building design with existing limitations repackaged with simple things that are a plus in a building and offer a Piranesian view aided by the heterogeneity of the walls and the diversity of viewpoints.

Interior, Photo by José HeviaInterior, Photo by José Hevia

Office Name
/
Project Location
Borne neighborhood, Barcelona, Spain
/
Completion Year
Office Name
Project Location
Borne neighborhood, Barcelona, Spain
Completion Year
advertise with designbit