Benton County Historical Society Corvallis Museum
The Benton County Historical Society Corvallis Museum (BCHS) is a cultural museum designed by Allied Works Architecture. Inside, the museum displays a growing collection of cultural artifacts, natural history specimens, and the Oregon State University archives entrusted to them. Throughout its journey, BCHS has aspired to increase its visibility in the region. To that end, a new gallery and interpretive space were built in the historic heart of the Central Willamette Valley, in the natural promenade of Corvallis. As a result, the design of this building presents a new perspective on the Corvallis area through various curatorial strategies and brings the new crocodile social programs closer to the community.

BCHS measures 19,000 sq2 and is located in the former territorial capital of Oregon, directly across from a 125-year-old shop building. The existence of this museum reinforces a contemporary presence in this long-built area of old sites. The mass, materials, and details of the new and modern museum building present a contemporary icon in the center of the historic city center. The parallel structures of the buildings echo the scale, while the ceramic tiled facade reinterprets the stone-building traditions found around the city.

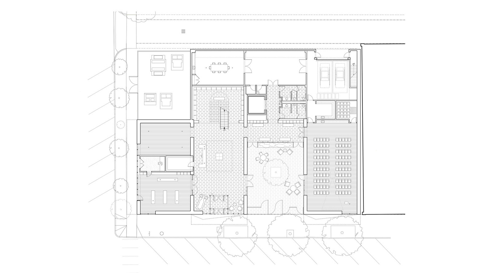
To enjoy the collections in the museum, visitors are guided from the lobby through a large staircase lined with wood panels. From there, visitors are led into a series of interconnected galleries, museum shops, multipurpose classrooms, and courtyards. In the gallery space, which is located on the top floor, there is a large window that gives a glimpse of all the art activities in it, as well as framing the view of the surrounding district. The gallery is divided diagonally in two by clerestories providing controlled natural lighting which further accentuates the diverse nature of the collection.

Not only does it hold valuable art and history pieces, but the new BCHS building will also serve as a home for BCHS curatorial, program, and community outreach staff. Since its inception, BCHS has become an icon for a new engagement with regional arts and history, as well as a new model for other local and regional institutions across the country.




Authentication required
You must log in to post a comment.
Log in