Casa De Silva: The Soul-Soothing Home of Tropical Modernism in Sri Lanka
The house with the concept of tropical modernism is specially designed for young couples who work every day. The owner of Casa De Silva wanted a house designed to be a private space that could provide tranquility with the enjoyment of the outdoors. From the wishes of the owner, the architectural firm Icon Cast, developed the concept of this house with a striking interior courtyard and skylights. Casa De Silva is a quiet house with maximum privacy.
![]()
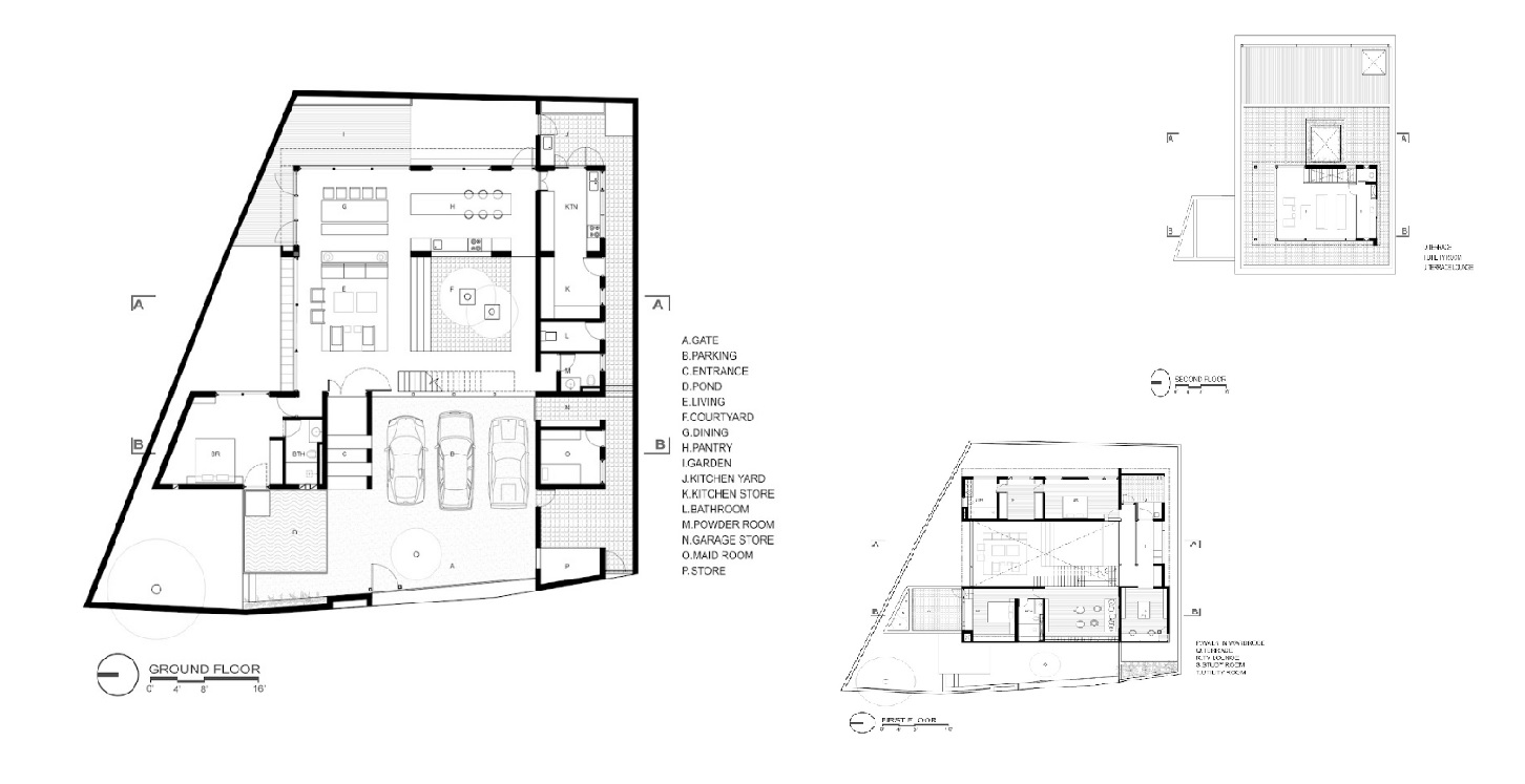
The house, located in Thalahena, Sri Lanka, has ample open spaces with double high ceilings, and abundant ventilation. This homepage forms an internal volume with a level of play on the space. In addition, this page also displays the outdoors that connects space in one line of sight. The vast volume in Casa De Silva is formed by a large hall room that accommodates the spaces that residents need for activities. The kitchen, dining room, and family room, are all open to each other without bulkheads between spaces. Visually, the open space is equipped with a page that becomes a meeting point, resulting in the circulation flow of freely flowing space with the illusion of a large space, although the function of each space is different.
![]()
![]()
Public areas of Casa De Silva such as the living room, dining area, and kitchen are located in a more open area of the house and connected to the exterior area of the house. While private areas such as bedrooms, tv rooms, and bathrooms are placed in the inner area with maintained privacy.
![]()
![]()
Large openings with neutral colors are combined with natural teak wood elements, making the space more lively with excellent air circulation and natural lighting. In addition, the use of natural teak wood materials is also applied to the selection of minimalist furniture combined with a white cloth to provide harmony in the room.
The Casa De Silva façade that uses natural teak wood and internal glass as a second skin aims to increase privacy needs and reduce heat acquisition during the day so that the interior space in this house becomes cooler.
![]()
![]()

Authentication required
You must log in to post a comment.
Log in