Eco-Friendly Urban Home Design By Nori Architects
Nori Architects designed A house for a couple with two children in Toyota City. This 100-square-meter building is divided into three levels in the form of a mezzanine. This design can serve as a new prototype of urban housing in the era of the global environmental crisis by providing pleasant homes open to families and the environment, with sufficient light and wind, using natural materials, and with fewer construction materials and waste.

front view of the building, Photo by Jumpei Suzuki
With this idea, Nori Architects designed it to be open to the environment with a large opening at the front, but a steel mesh was added to maintain residents' privacy. With this wide opening, natural lighting and living can be maximized to ensure year-round comfort and energy efficiency. In addition, a comfortable thermal environment is achieved at a low cost by designing ventilation routes and using fans and ducts to distribute warm/cold air from one underfloor air conditioner to each zone.

kitchen and living room interior, Photo by Jumpei Suzuki
Section, Source by Nori Architects
The architect designed a warm wood-filled space without interior upholstery and replaced it with exterior insulation in fiber content siding. This allows users to understand the structure of the building and carry out repairs and modifications on their own, and its low cost.

living room and work space interior, Photo by Jumpei Suzuki
Nori Architects also considered the occupancy's resistance to earthquakes by placing load-bearing walls with structural plywood and steel at appropriate intervals at both ends of each floor. As a result, the house achieves high earthquake resistance performance (Level 3) while eliminating deformation differences in stepping floors and suppressing deformations during wind pressure, as well as ensuring spatial flexibility and transparency.

front view of the building, Photo by Jumpei Suzuki
In addition to strengthening the structure of the building, the roof is built with a reduced number of components on top of exterior insulation and a folding roof over the baseboard and asphalt roof. This strategy helps to simplify the roof frame and eliminate the need for rafters.

exploded-axonometric Source by Nori Architects
The building achieves high sheathing performance using exterior insulation, high-performance window sills, and roof efficiency. In addition, the entire land, including the soil, was repaired by digging trenches and pits on the outside, burying organic matter, and letting water and airflow through the ground, making this house zero runoff.

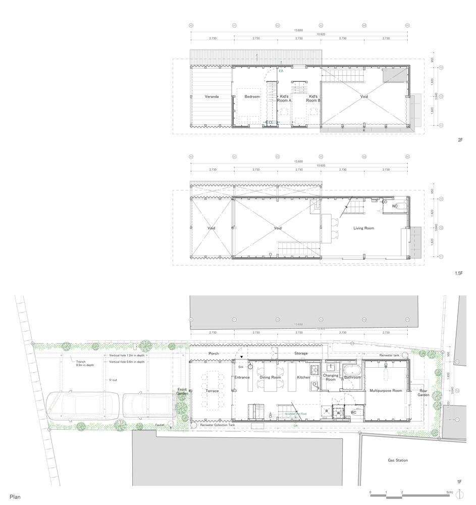
Floor Plan Source by Nori Architects
Authentication required
You must log in to post a comment.
Log in