Elements of Concrete With Sand Mix in The Green Corner Building
Studio Anne Holtrop designed a building with concrete elements that have a unique texture in Muharraq City, Bahrain. The site stands in the area of parking that has an elevation higher than the road level. Green Corner Building, that’s what the building was called, its name was inspired by the vertical garden designed by Patrick Blanc, which is located near the building.
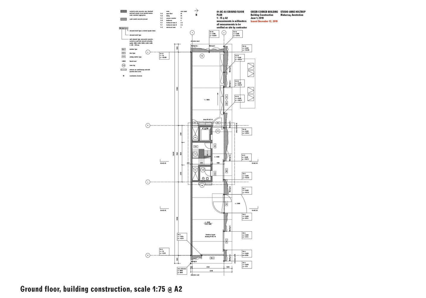
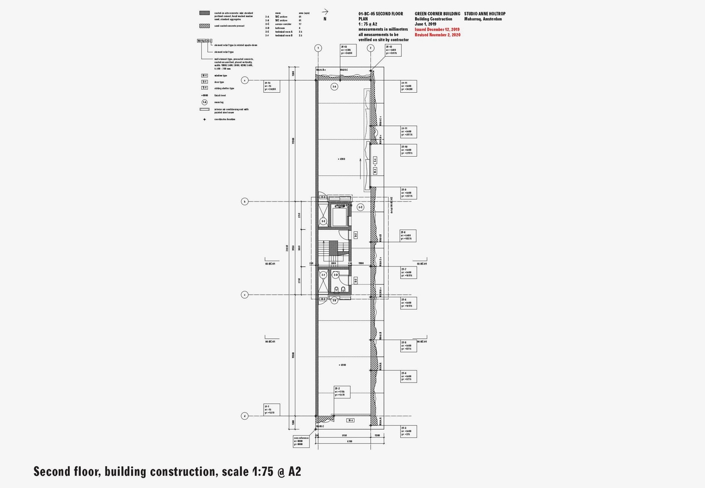
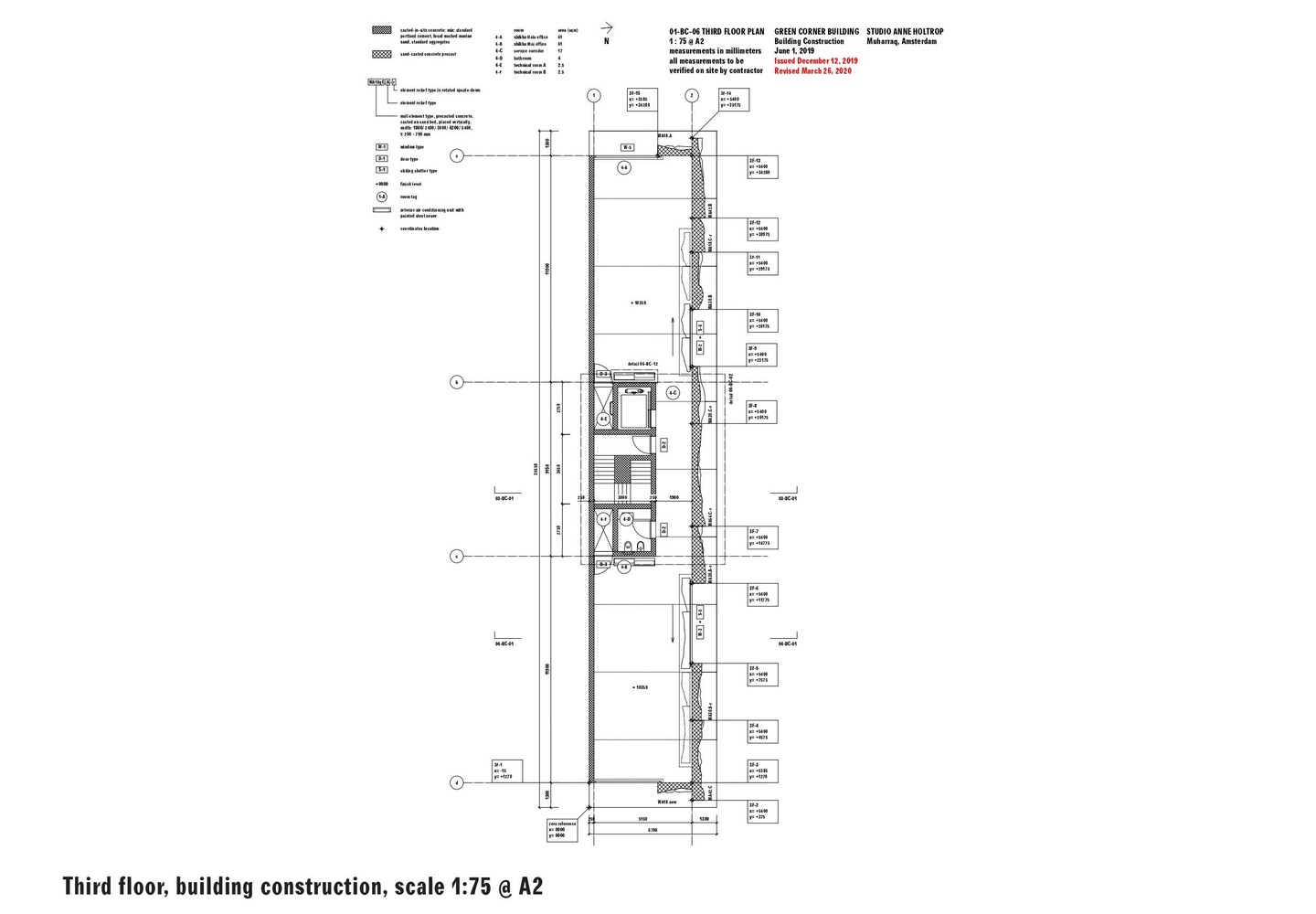
Green Corner Building consists of 4 floors, where each floor from the floor plan consists of 2 main rooms with each room measuring 11.9 meters x 5.15 meters, and the core is in between as a utility with overall dimensions of 3.25 meters x 9.15 meters.
front view of the green corner building
perspective view of the green corner building
The dimensions of the plan tend to be elongated rather than wide, so the building looks flat and tall. In exterior view, Green Corner Building has a very prominent element, namely the use of concrete with a size and different texture as the main facade elements, and also offset with large glass openings to provide natural light.
The unique concrete facade is made of structural wall elements that are cast with a mixture of sand. In the interior, the walls apply a unique textured concrete found in the corners building and at the window position.

detail view from the wide side of the building
On the floor of the building also apply to cast using sand mixture is made in the same way. Shutters, and entrances it is also made of hollow aluminum sand mold, but the texture is that the uneven surface faces the inside of the building.

the interior wall covering of the building which also uses a unique concrete texture
Concrete elements mixed with sand have 3 types of dimensions from which longest to shortest, each dimension is subdivided into 3 with different textures on each concrete. So that each concrete element has a variety of textures and is interesting to look at in detail.

large aluminum entrance details form a sand-concrete texture
Green Corner Building gives rise to a heavy, solid form of building. But the play of wavy and uneven concrete textures creates its uniqueness in describing concrete materials that are different. Light circulation is also considered in this project to maintain temperature and save energy.




Authentication required
You must log in to post a comment.
Log in