Frizz23 Building | Deadline Architects
A new cultural commercial space has been designed by Deadline Architects, an architectural studio from Germany. The building, named Frizz23, is a co-working space focused on the arts, education, and creative industries in Berlin. The design is based on Baugruppe's model, a German term that literally means "building group". The project is built on land won in Berlin's first concept-based land sale procedure.

The Baugruppe model has recently triggered a lot of interest in Berlin for its form of self-organized collective housing. It offers an innovative approach to building development and intentional communities. Usually, this building model is used for housing projects. Where the community groups bypassing developers are usually the ones to fund the projects, working directly with architects and designers.

Frizz23 is the first example of applying the Baugruppe model in creative workspaces design. With Deadline Architects taking the role as a developer, assembling a group that consists of 32 small companies and non-profits threatened by increasing rent prices in the city of Berlin. The cooperative design of the building demonstrates the possibilities of bottom-up urban development. Showing how citizens and local actors can take the lead in making constructive and successful communal projects. The plots of land surrounding a former wholesale flower market known as the “Blumengrossmarket” were highly coveted for years.

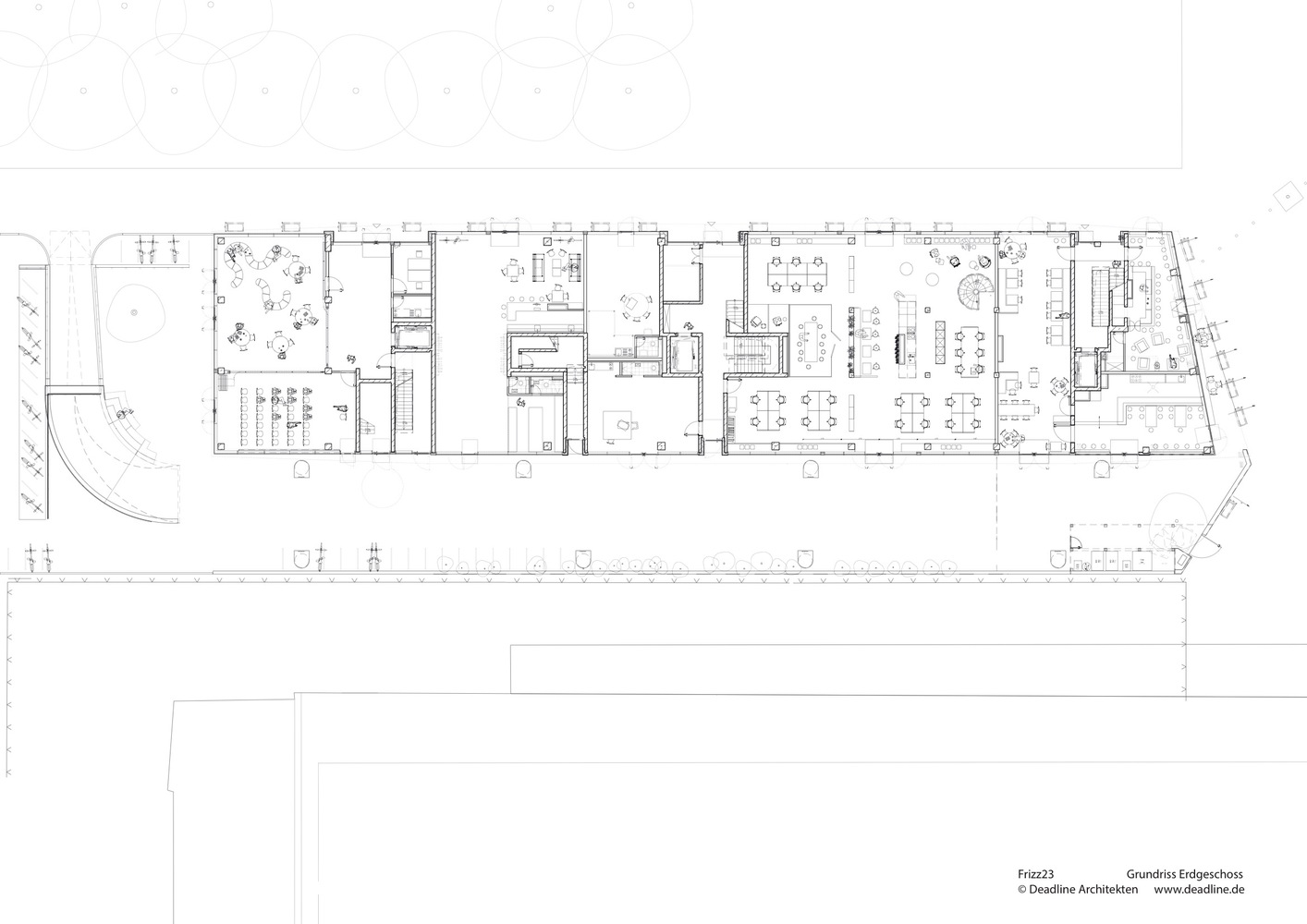
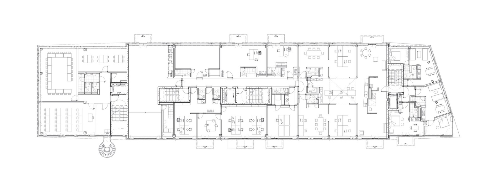
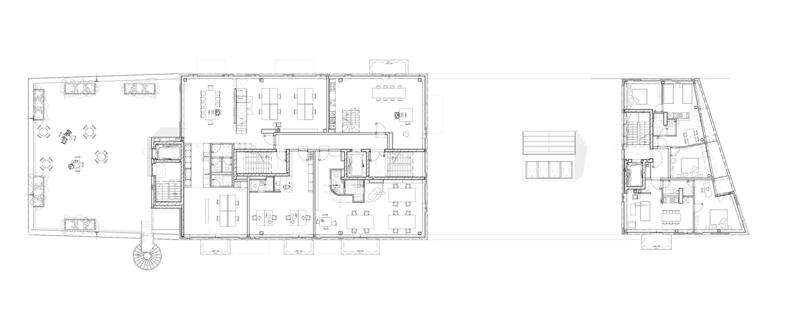
The concrete-framed structure, clad in charred larch and aluminium, contains various living rooms, artists' studios, artwork, and education spaces, along with public areas on the ground floor. According to Deadline Architecture, Frizz23 is a new prototype that addresses the urgent problems the cities are facing today, and as architects, they create qualities that profit-driven investors ignore. They added that the building’s silhouette expresses the project’s complex mixed-use programme and ownership structure, bringing the concept of a city within the city.

The idea of creating this program and platform of communal co-working areas was first formed in a series of workshops organised by local activists. The purpose is helping to create a concept-based tender for the project. three projects won this tender and later formed a network that became the forerunner of the future Baugruppe model





Authentication required
You must log in to post a comment.
Log in