J House | y0 Design Architect
(text provided by architect) Originated from the owner’s wish for a new house with a simple & modern yet comfortable to be called homey concept after living in the old-fashioned house for the longer part of their life. A small part of the land is obtained in a quite dense residential area not long after discussing this upcoming project. This became an opportunity but also a challenge for the design because the house can be beautified from two sides and at the same time facing the direct sunlight heat from the west.

With careful considerations and design thinking in the process, a simple geometric mass shape was chosen and detailed in such a way with many interesting elements. Such as the use of wood, tile & steel for the façade. However, the use of concrete as the main construction system is considered the most suitable for this kind of design. A concrete slab foundation is used to reduce or minimize the damage that could be done to the existing houses nearby as low as possible. Sides of the house that is exposed to direct sunlight, especially from the west side are filled with spaces or architectural details that can help reduce the heat. Such as wooden louvers, planter boxes, wardrobes, working room, and bathrooms. This is considered to be successful because actually, the rooms can achieve a good temperature comfort even when not using the air conditioner.




This house is heavily influenced by the Japanese modern houses design, such as the efficient arrangement of the spaces, utilizing many openings for maximum natural lighting and ventilation, using Zen garden philosophy for outdoor areas to minimize maintenance, and the use of many wooden materials that can be found dominating this house. Either in architecture or interior design-wise.


The space that is considered to be prioritized in this house is the living room area which blends the dining room together as a semi-public space. Large openings with sliding doors are applied to this area to be able to interact with the patio on the outside. This area is designed to have maximum vista but also heavily safe and felt private as the users cannot be seen from the road outside the house.

Mostly, the walls are not covered with materials that are considered to be fancy, expensive, or unnecessary. It is what it is, the painted brick walls are handmade and are chosen as the main consideration due to the likeness of design philosophy from architect & interior design. Which more or less utilizes the Wabi-Sabi principle that in something imperfect, we could appreciate the beauty itself. Now, the owner can finally live in the final output with pleasure, as the house is carefully thought of from the start. Although this was the first time using architectural & interior design services for the owner, it was considered to be a joyful and harmonious collaboration works achievement. (text by architect)
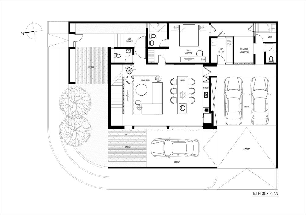
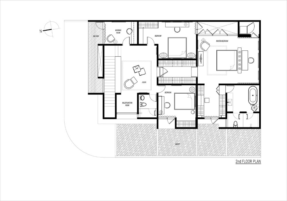
second-floor areas




children bedroom
Authentication required
You must log in to post a comment.
Log in