JPP Nursery: Between The Space, Nature, and Community

September 22, 2023

Nurturing diversity in a social community encourages innovation in an inclusive public facility that prioritizes the diverse needs for all users, including those with special needs, just like one of the public facilities in Tsuruga City, Fukui prefecture, Japan, JPP Nursery provides inclusive childcare that cultivates empathy among children, regardless of their backgrounds and identities.

JPP Nursery, by HIBINOSEKKEI, Kids Design Labo, Youji no Shiro

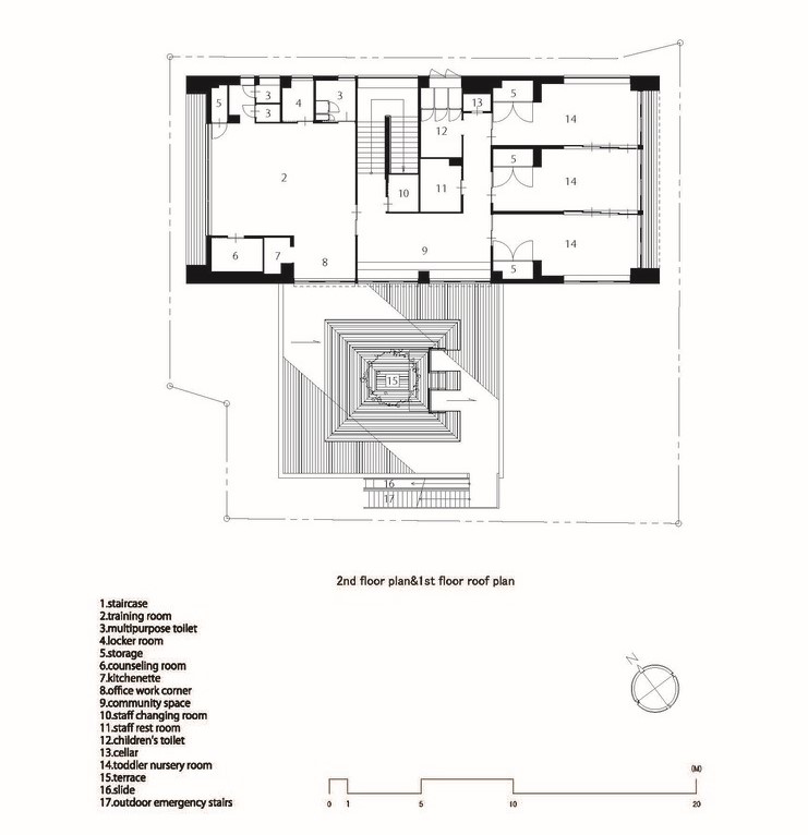
To enhance the inclusivity, HIBINOSEKKEI, Kids Design Labo, and Youji no Shiro, designed the semi-open floorplan with couples of voids on each side, effectively pushing off the boundaries between the indoor and outdoor space. It enables the children to connect perfectly with the outdoors while doing indoor activities. Additionally, on the top floor is a pyramid-shaped deck terrace that provides a perfect place for them to socialize and play with others to develop their social skills. Right below the terrace is a playroom with wide openings on both sides connected directly to a spacious yard where the children can explore and enjoy the beautiful blue sky above Tsuruga City.

JPP Nursery plan

JPP Nursery, by HIBINOSEKKEI, Kids Design Labo, Youji no Shiro

The rooms are designed with a minimalistic approach, which provides a wide and spacious space for children to explore and play freely. The features such as walls, furniture, and decorations are made minimalist without any sharp-edged elements to ensure the safety of the children. The earthy tones and patterns used in the building are adopted by the diversity of the form and color of the surroundings, building, and vegetation, blending the room's atmosphere with the surroundings and stimulating the children's senses as they explore their environment.

JPP Nursery, by HIBINOSEKKEI, Kids Design Labo, Youji no Shiro

JPP Nursery, by HIBINOSEKKEI, Kids Design Labo, Youji no Shiro

Derived from this design concept, JPP Nursery has created a suitable place for children from diverse backgrounds to interact and enhance their empathy with others. Providing an open space to explore and learn about sympathy with fellow humans and the surroundings. 

JPP Nursery, by HIBINOSEKKEI, Kids Design Labo, Youji no Shiro

JPP Nursery, by HIBINOSEKKEI, Youji no Shiro, Kids Design Labo

/
Project Location
Tsuruga City, Fukui prefecture, Japan
/
Completion Year
Project Location
Tsuruga City, Fukui prefecture, Japan
Completion Year
advertise with designbit