Klamby Headquarter Office | SAiA
(Text description provided by the architects). Wearing Klamby is located at Islamic Village, Tangerang. A local fashion brand specializing in modest women's wear. The owner is a young couple who are passionate in contemporary fashion, modesty and elegance. From the first discussion we agree to express a background modesty contemporary for this creative office.

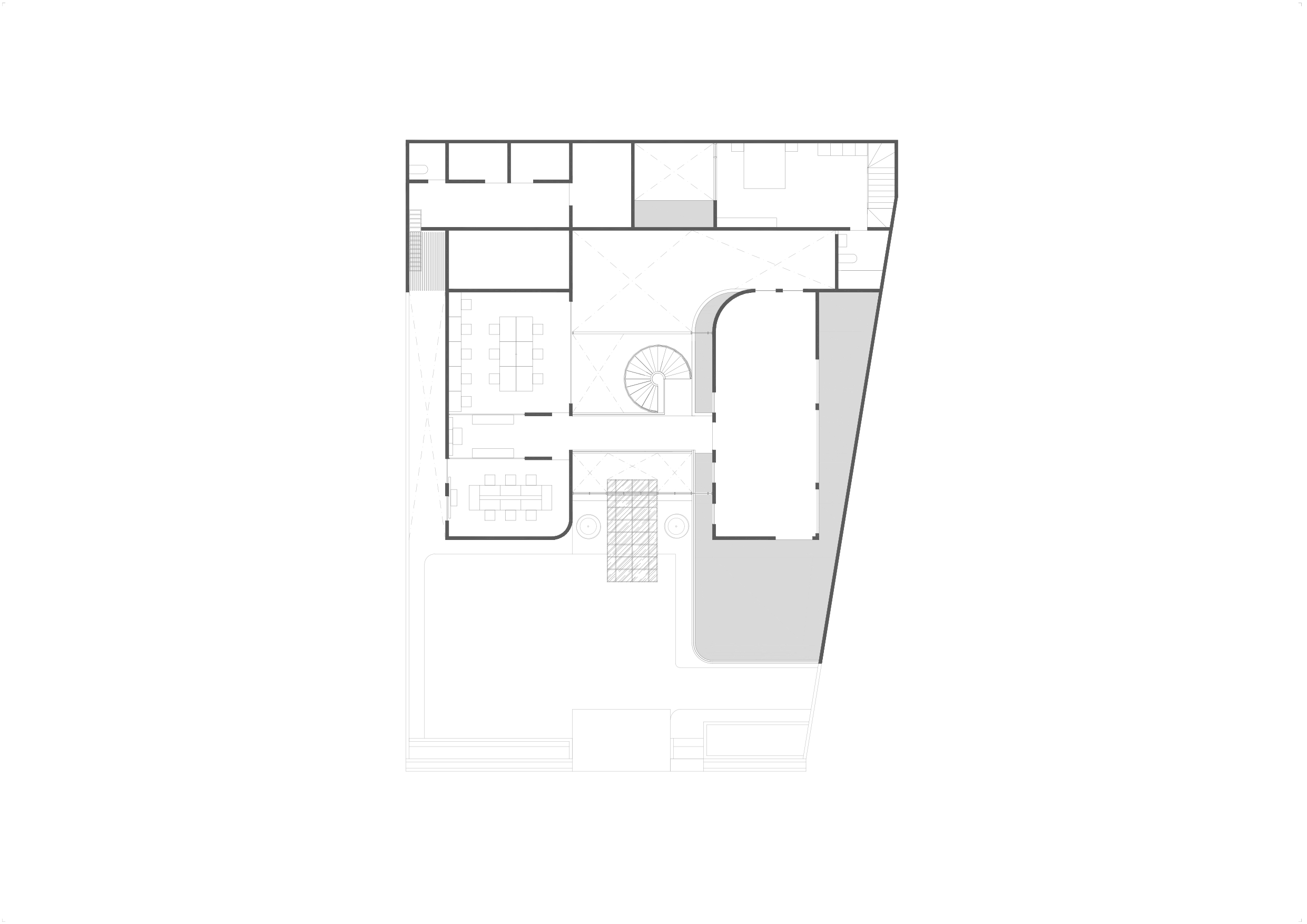
The function is divided into 3 main masses, exhibition/entertainment – creative/office – living area with all connected by inner courtyard interlace. Inner courtyard plays an important role in the overall area, gives the possibility to play with the mass volumes, not to get one massive building and provide more experienceable sequences of in-between spaces to explore.


Interlace space in the middle creates an inner courtyard as a divider from office and private living studio. Inner courtyard gives access to air circulation to every space inside this private creative office. A basic rectangular geometry with a curve represents the owner as a couple business entrepreneur of masculine meets feminine, where creative practice meets management practice.

With all the fashion design process of various type-color-size and combination of fabric, black and white building implemented simplicity ; texture white space is the background that holds the elements together and surrounds the other design elements to stand out. With the composition of stacking and overlapping masses gives more space between creativity and continuous inspiration.




Authentication required
You must log in to post a comment.
Log in