OFMA Vineyard Office
OFMA Vineyard is located in the Pirque region, south of the city of Santiago in the Maipo River Valley, Chile. This area is one of the areas that is very famous for its wine production. Especially on the northern slopes at one of the foothills, which are lined with vineyards and olives. At this location, architectural studio MAPAA designed a vaulted barrel-shaped concrete office for a family-run wine business in Pirque, Chile.

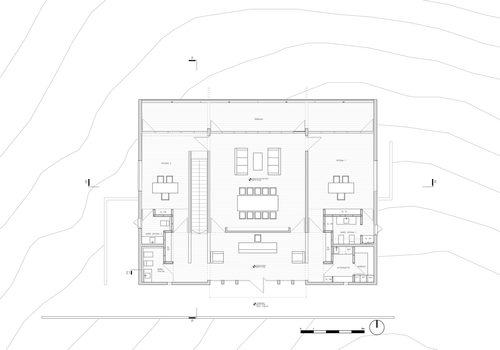
This office building is desired by the client as an office area for the father and son, with each office being independent but still connected through a central room that also functions as a meeting room. In its design Studio MAPAA used pigmented concrete to create the three arched domes above the office. The three domes are elevated above the frame to allow installation in inclined locations. The building is located perpendicular to the hillside with a spatial program arranged through three naves. The division is in the form of offices and meeting rooms in the north, while the main access, reception, bathroom, basement and kitchen are located in the south.

The central area which is a common room is oriented around a large Italian rug. The presence of a large work of art in the center of the building, conditions the configuration of its support, a wall, which in turn must have the spacing, height, and sheathing relationships that allow for its correct appearance. MAPAA designed the surrounding walls and ceilings to accommodate this large-scale work of art.

The shape of this office building built for the Viña Harás de Pirque vineyard takes cues from the traditional crypts found in the area. The barrel vaults that make the building so iconic also refer to the ancient cellars that were used as wine storage and have become a characteristic of Chile's wine-making tradition. The image of a curved cellar for storing wine was brought to the surface through a new materiality giving rise to the idea of a dome with a wide span without any intermediate supports, yet still able to firmly cover large areas.







Authentication required
You must log in to post a comment.
Log in