Real de los Reyes 138 'Heart of Culture' Mexico City
Miguel de la Torre Arquitectos designed Real de los Reyes 138, a residential complex of 13 houses in Los Reyes, Coyoacán. Previously, Los Reyes City was known as a traditional city characterized by rocks, known as the cultural heart of Mexico City.

Real de los Reyes 138 residential complex, Photo by Rafael Gamo
The design goal is to maximize land use by preserving and respecting the city's established regulations. The Coyoacán area is also referred to as the Historical Center in Los Reyes. The area retains a strong urban identity that sets it apart from elsewhere in the city, with its colonial architecture giving it a provincial character that is highly valued by the population.
Real de los Reyes 138 residential complex, Photo by Rafael Gamo
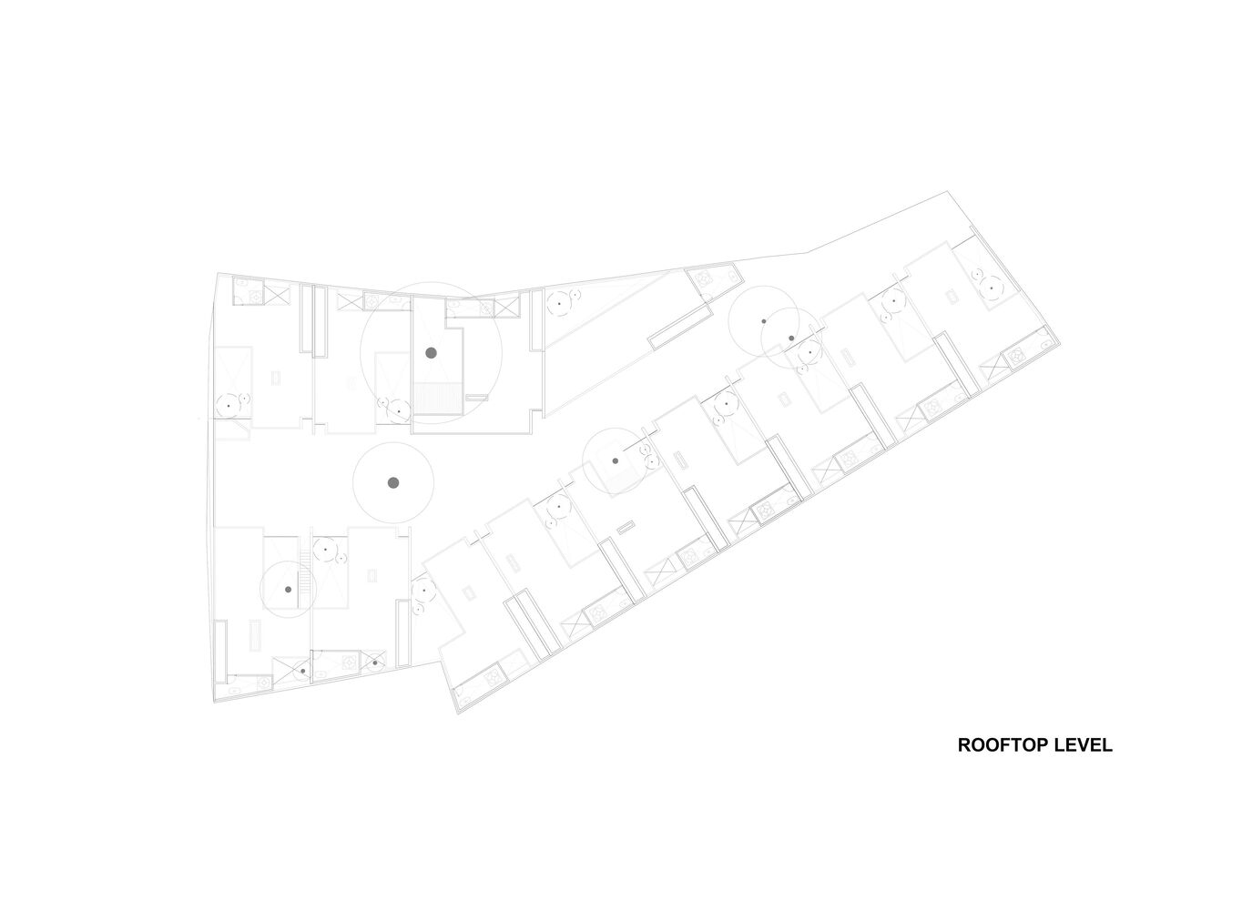
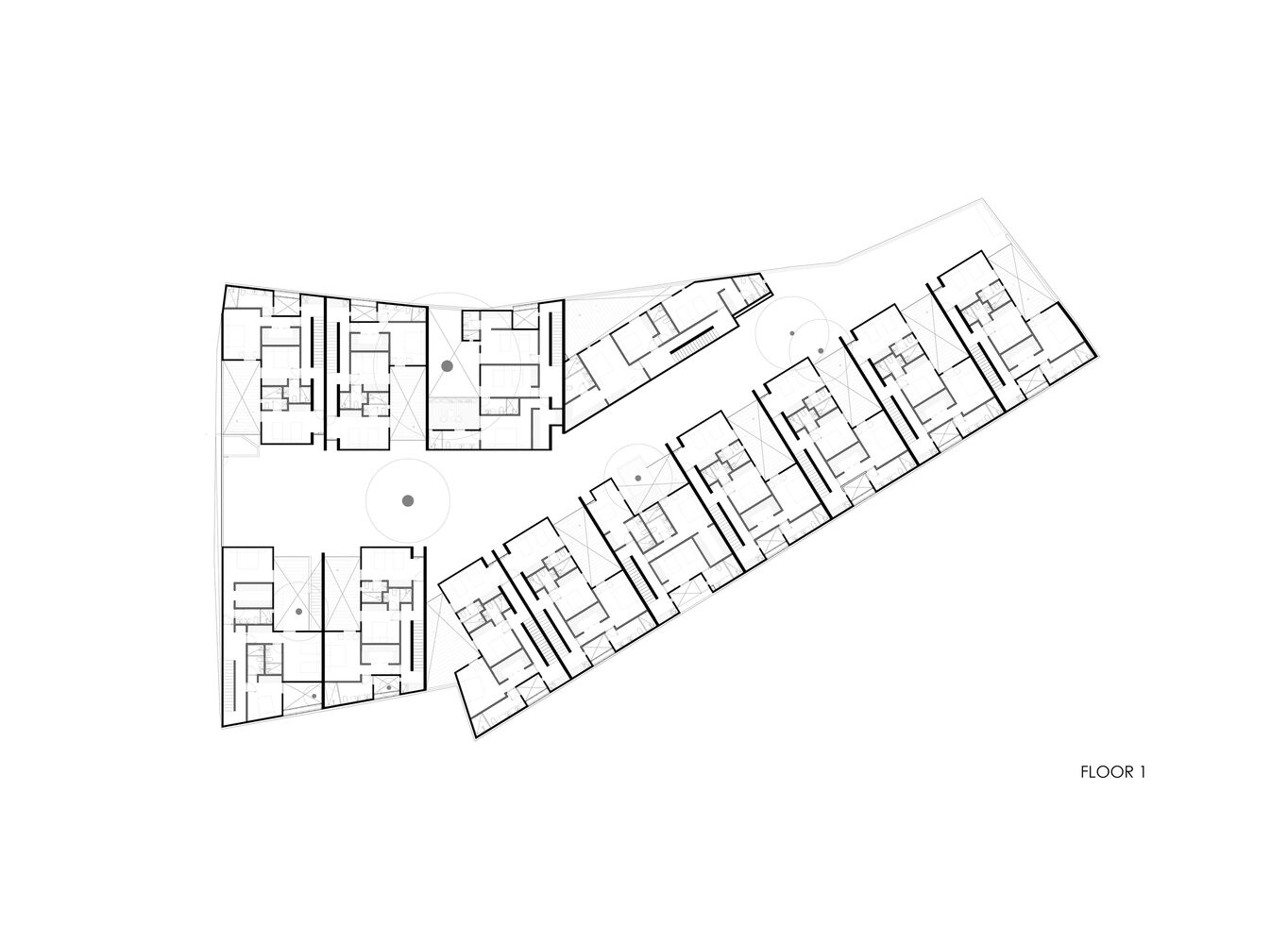
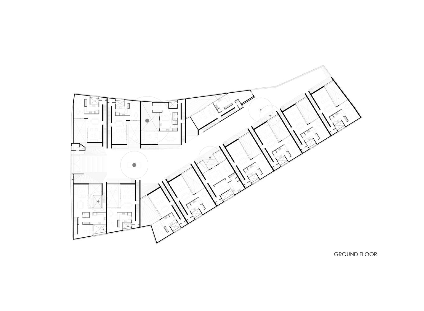
This housing complex, which has a distinctive terracotta color, creates a living space while maintaining its traditional character as a quiet space. Each house is arranged in four levels. On the ground floor, there is a parking space and a service room, followed by a thick staircase leading to the first floor, which contains a communal area such as a spacious living room, which opens to a sunlit courtyard flanked by concrete and glass walls. The second floor has a private space for each residence, including a bedroom with an en-suite bathroom, while the rooftop offers a private terrace with views of the surrounding environment.
Parking floor plan, Source by Miguel de la Torre Arquitectos
Ground floor plan, Source by Miguel de la Torre Arquitectos
First floor plan, Source by Miguel de la Torre Arquitectos
Rooftop floor plan, Source by Miguel de la Torre Arquitectos
Another important design parameter is the sensations produced by the various project spaces, both inside and outside. The first moment of the project's impact is felt when entering the residential complex surrounded by a rust-colored environment that contrasts with the sky. The second moment is felt in the access to the house, with two triple-high walls containing concrete staircases that carry into the house, a staircase that continues to the last habitable level. The main attraction of the façade of the house is the concrete grid with circular perforation on the inner courtyard of the house, creating a connection with the exterior subtly, openly and thoughtfully, at certain times, the light of the sun creates an attractive shadow inside.
Stairs Real de los Reyes 138, Photo by Rafael Gamo
Given the changes in post-pandemic routines, spaces are considered comfortable and functional and integrate moments of silence, lighting, privacy, and excitement. The interior design of the house is left to each occupant and the needs of the space and tastes.
Real de los Reyes 138 interior, Photo by Rafael Gamo
Real de los Reyes 138 interior, Photo by Rafael Gamo
Authentication required
You must log in to post a comment.
Log in