Rieckshof Photo Studio | Helga Blocksdorf Architektur
This project is the result of a design transformation from a cage building into a photo studio as a temporary workspace. Located in a stand-alone location, the shape of the existing building looks historic and beautiful from the outside. Under these conditions, this project wants to balance introversion and extroversion in converting this warehouse into a full-fledged photo studio, the room initially closes itself off from the outside.

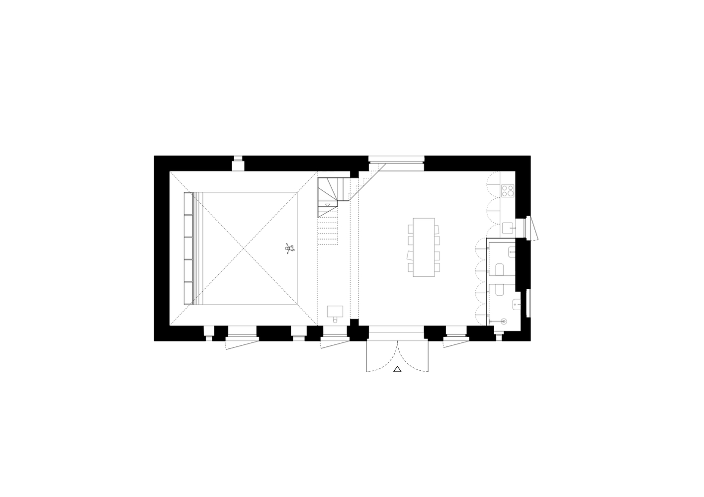
The room is entirely focused on the production of the images against the abstract setting of a background sweep. The double height of this part of the room allows the gaze to wander all the way up to the closed roof panel. The roof structure in this building uses a solid nail frame with a construction thickness of 50mm. This structure floats on the new rugged heating screed of the stable floor.

The existence of large linear structural elements marks the division of the area and zoning of the building. The photographic work is directed further inward, on the left. While the more convivial areas that consist of a conference room, cooking, shower, and changing area are raised and tucked away under the roof in the right half of the barn. The separation using this radical cut is necessary to clearly demarcate the areas of introversion that exist in the photo studio, and the areas of extroversion intended for fluctuating public guests.

The view from the building provides expansive views of the rugged Uckermark landscape for models, photographers, and the rest of the team. This expansive view is captured by the boundaries of space formed by the barn door which echoes its dimensions even more. At the point of articulation between the dressing and storage rooms that are consolidated above and the open warehouse space below, a staircase incises itself into the corner of the construction and the opening.

Another adjustment is also made during the construction, making the barn door open and the landscape appear in the room. The architecture acts in the manner of overdelivering with a raised three-dimensional accordion situation for the staircase as a new shoulder joint in the space, which may be occupied in climbing, sitting, standing, and lying down.






Authentication required
You must log in to post a comment.
Log in