Speising Fire Station | Illiz Architektur
Firefighters at a Special Fire Station generally only have 30 seconds to get ready when the fire alarm goes off. Given that every second of time is critical, the main task of the architect is to ensure optimal process efficiency and tactical functionality. On the other hand, the building which is used 24 hours a day also requires a distinctive architectural design.

In the summer of 1927, the Vienna Fire Brigade moved to a newly built site on Speisinger Straße, one of the busiest traffic thoroughfares in the 13th district of Vienna. 90 years later, this building no longer meets the operational needs of emergency services whose role continues to grow and develop. To meet the design needs of a new fire station building, in 2018 a design competition was launched by the Department of Fire and Disaster Management of the Vienna City Council. The results of this design competition are expected to replace the building structure facing the road, reorganization, and general renovation of the main building.

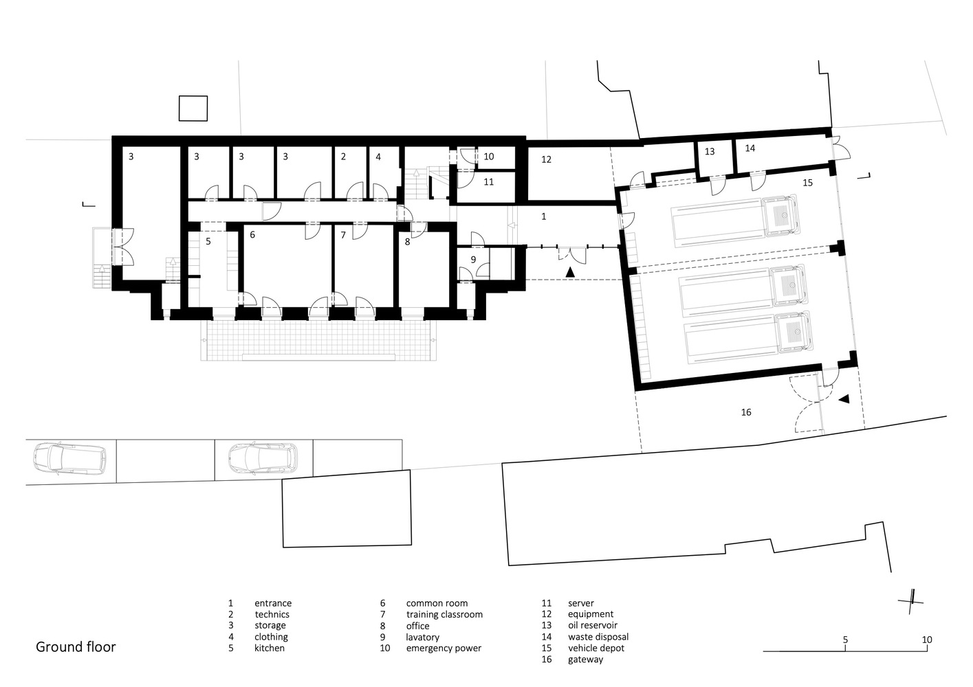
The facility consists of three functional-spatio units: a vehicle hall, high activity area, and quiet room. The existing space in the Wilhelminian style building behind the inner plot has been restructured and is now fully usable. The common area and kitchen with adjoining dining area and outdoor terrace are located on the ground floor, six bedrooms for a total of twelve firefighters are located upstairs. The watch commander’s office is strategically positioned close to this main entrance, between the vehicle hall and the common areas.

To achieve an economical and sustainable design, the vehicle bay is thermally disconnected. Taking into account the short construction time, a high degree of prefabrication was chosen: Precast concrete elements and hollow deck ceilings span the twelve-meter-wide hall. Here, three red fire trucks are ready to exit the hall at any moment. At the back of the hall is a red cupboard. The inside of the new building was dominated by exposed concrete.

The use of the classic yellow facade of Vienna which is quite dominant found in Speising serves to integrate the building with its surroundings. The intense yellow color brings together the various metalworking of the new facade and creates an identity-building appearance for the Speising fire station. By protecting and serving, the design provides space for firefighters who regularly risk their own well-being to save lives.




Authentication required
You must log in to post a comment.
Log in