When The Needs of Residents and the Building Are Met, DJ House Manages to Stand Out from The Surroundings
A young family living in Tangerang, Indonesia, wanted to completely change the appearance of their residence because it did not suit their taste and local tropical climate conditions which were quite hot and humid. Accepting the challenge of the house renovation project, the architect team from STUDIÉ also created a design that was able to answer the needs of the residents and the building at the same time.
DJ House is a renovation project carried out by STUDIÉ.
It is known that the existing building cannot meet the client's needs in terms of space program and design. Moreover, the position of the building, which directly faces west, has made the house have its problems regarding high air temperatures in the afternoon and evening. To get around this, STUDIÉ then carried out a complete overhaul of the facade so that the sun's rays and radiation can be filtered better before entering the house. This facade change also supports the latest form of the building which seems to separate the right and left sides like a DJ turntable, according to the name of the homeowner.

Facade as a filter for hot air from outside.

The facade is also analogous to the distinctive shape that seems to divide the front of the house into two separate parts.
To provide clients with visual satisfaction and a different look from the surrounding buildings, this home renovation project also pays attention to the selection of mostly exposed materials. The facade, which is the most important part of meeting the needs of the building, is then designed using brick as the dominant material. Two types of bricks are used, interlock bricks and pasted bricks. However, compared to the pasted brick on the front wall, the application of interlock brick on the facade is indeed the most obvious in giving character to the house. The interlock bricks are arranged with iron reinforcement as a binder and spaced to form holes that can be a way for wind to enter. In addition, the walls with exposed cement and gray floors add to the natural impression of this 164 m2 house.

Front terrace.
Open space on the balcony is protected by an interlocked brick facade.
STUDIÉ added that this project did not cost much because they tried to make minimal changes to the structure and walls of the building. Because the main target is a total change in the appearance of the house which is the client's desire. Even so, of course, there are still challenges in the process of working on this renovation project. Starting from the difficulty in explaining the design method to contractors, to the time constraints of the work that coincided with the pandemic.
Living room.
Dining room and kitchen.
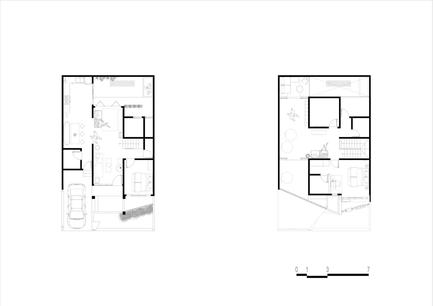
Ground floor plan (left) and top floor plan (right).
Authentication required
You must log in to post a comment.
Log in