The Perforated Red Bricks Dominate Studio Mind Manifestation Design
The renovation of the residential building located in an apartment next to the hills of Pune city, India was intended to create a design studio by the architectural firm Mind Manifestation Design. Nature and interior become one; its location next to the hill has an influence on the design and layout of this design studio with the selection of materials that are adapted to the nuances of the hill. "So nature flows into the room, and space becomes part of nature," Mind Manifestation Design explains.

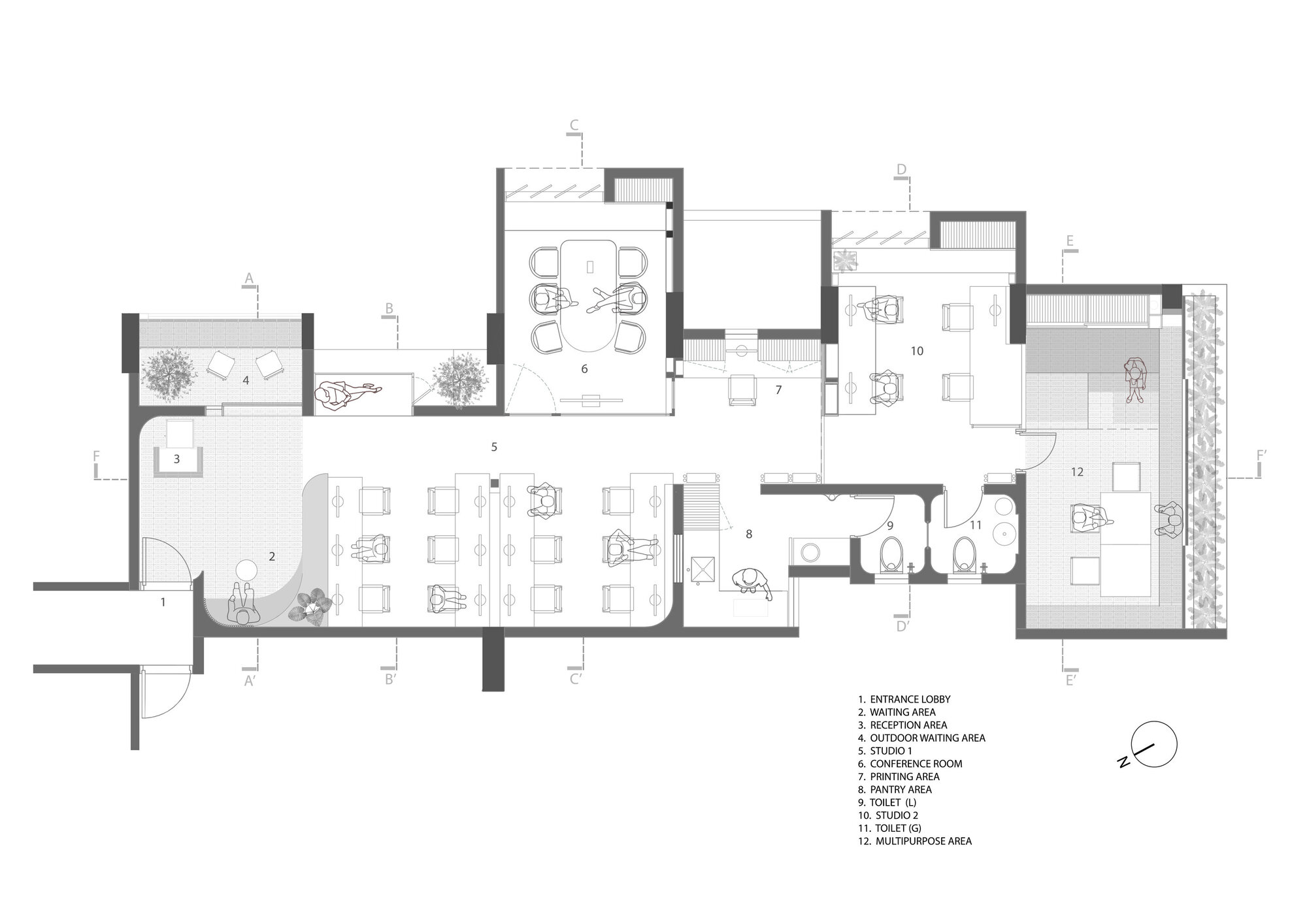
With an area of 120 square meters, it is dominated by green walls and hollow red bricks with minimal partitions to create open and free space. The zoning differences of each area are distinguished through the selection of floor material, without excessive bulkheads to create freedom of circulation in the office. The reception area and function room are designed using natural red brick paving that is neatly arranged to create an aesthetic for the space. While the floors of the kitchen, studio, and meeting rooms use concrete floors painted in terracotta colors to align with red brick floors.

The interior of the office space uses a cardboard tube that is applied to the guest chair as well as functioning as a barrier between the public area and the studio area. The reception desk made of red bricks facing the guest chairs, equipped with the background of the name Mind Manifestation became the identity of this studio. Just behind the reception desk is a small terrace to create a seamless connection between the studio and the outdoors.



Adjacent to the small terrace and separated by a wall there are lounge chairs that offer a charming view of the hill. The meeting room is centered by wooden tables with vertical wooden wall accents and minimalist chandeliers, creating a relaxed but still formal atmosphere. The back area is used as a function room for informal meetings where staff can exchange ideas with each other. The multipurpose area is bordered by hollow red bricks allowing natural air circulation to enter the interior.
Wooden furniture, natural red brick paving, green high walls, and a minimalist sky without ceiling games complement the office environment of the Mind Manifestation Design studio.




Authentication required
You must log in to post a comment.
Log in